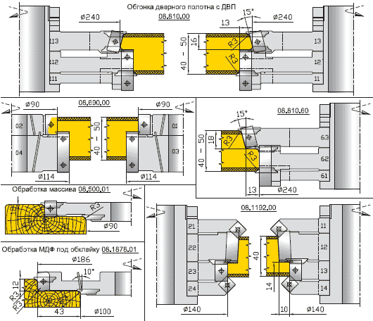
Комплекты фрез для профилирования дверных коробок (08.XXX.XX)
Реклама Рекомендуем предложения
Детальное описание




Похожие товары
Каталог
Компания
Станкофф.RU
420127, Россия, Татарстан, Казань, ул. Фатыха Амирхана, 42а
+7 (800) 5555770
Социальные группы



