Чертежи, документация и консультации по изготовлению сушильной камеры для фитосанитарной обработки древесины - Продам в Молодечно
Беларусь, Минская обл., Молодечно, ул.Металлистов, 2В
Детальное описание
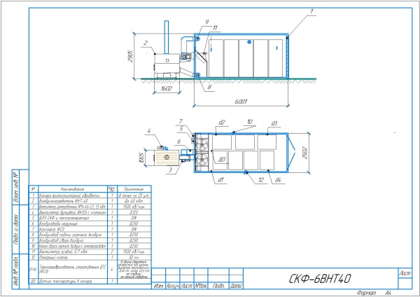
ООО «СИТ-технологии» предлагает услуги по устройству камер для фитосанитарной обработки деревянной тары и поддонов СКФ-6ВНТ40 или СКФ-12ВНТ70 на базе морских б/у контейнеров, размер наружный: 6*2,5*2,9 или 12*2,5*2,9 м.
Источником тепловой энергии служит твердотопливный воздухонагреватель ВНТ-40 или ВНТ-70, работающий на дровах и кусковых отходах деревообработки. Изготовить воздухонагреватель предлагаем на месте по предоставленным чертежам.
Установленная электрическая мощность для СКФ6-ВНТ40 – 3,5 кВт, для СКФ-12ВНТ70 - 5 кВт.
Камера СКФ с источником тепловой энергии ВНТ монтируется на ровной площадке с твердым покрытием.
Единовременная загрузка поддонов составляет в среднем 200 штук в камеру СКФ-6ВНТ40 и 400 штук в камеру СКФ-12ВНТ70 и зависимости от размера поддона и способа укладки.
Контроль и управление технологическим процессом нагрева поддонов и управление горением воздухонагревателя осуществляется релейной автоматикой, датчиками температуры.
Регистрация и учет процесса фитосанитарной обработки осуществляется специальным измерителем-регистратором с 4-мя отдельными датчиками, которые вставляются в бобышки поддонов на глубину 50 мм. Специальный прибор – модуль сбора данных – позволяет накапливать и сохранять показатели в отдельных протоколах, передавать их по проводной или беспроводной связи на компьютер.
В перечень наших работ входит предоставление информации по количеству и характеристикам материалов для обустройства термоизоляции камеры, чертежи и схемы для монтажа технологического оборудования, детальные чертежи для сварки воздухонагревателя, онлайн-консультации по материалам и работам.
Шкаф электрический и управления с автоматическими выключателями, пускателями и защитой для вентиляторов, 3-мя программными терморегуляторами контроля температуры в камере и топке воздухонагревателя, 3-мя программными реле времени для реверса вентиляторов, промежуточным реле, кнопками П и С, сигнальными лампами, 3-мя датчиками температуры, а также шкаф с приборами регистрации и учета процесса фитосанитарной обработки может поставляться в готовом виде за отдельную плату.
Также разработаем паспорта на камеру, воздухонагреватель и технологический процесс фитосанитарной обработки.
Стоимость услуг по устройству камеры СКФ-6ВНТ40 или камеры СКФ-12ВНТ70 вместе с 2-мя шкафами управления составляет 880-00 (Три тысячи четыреста шестьдесят) долларов США.
Условия оплаты:
- авансовый платеж в размере 50% (пятьдесят процентов) от суммы договора - в течение 5 (пяти) календарных дней с момента подписания договора обеими сторонами;
- окончательный расчет в размере 50% (пятьдесят процентов) - в течение 3 (трех) дней после ввода в эксплуатацию согласно подписанного сторонами акта выполненных работ.
Гарантийный срок на ШЭУ и ФСО – 12 месяцев с момента ввода в эксплуатацию
Создано 24.02.2026 Изменено 24.02.2026

