Фрезерный станок с ЧПУ OPTImill FU 5-600 HSC 18
Реклама Рекомендуем предложения
Детальное описание
Описание
- Применяется в тяжелом машиностроении
- Высокая производительность
- Инструментальный магазин с двойным захватом на 32 слота входит в стандартную комплектацию (опционально увеличение до 48 и 60 слотов)
- Оптические линейки HEIDENHAIN – дополнительная измерительная система для высокой точности обработки
- Поддон для стружки
- Прецизионные линейные направляющие
- Сервоприводы с высоким крутящим моментом на пяти осях
- Ускоренное перемещение до 36 м/мин
- Телескопический кожух направляющих
- Прецизионные шлифованные высокопроизводительные ШВП
- Шпиндель Built-in spindle установлен на высокоточных подшипниках серии Р5 с постоянной автоматической смазкой
- Высокочастотный шпиндель KESSLER со встроенным приводным двигателем, который не нуждается в передаточном механизме. Для высоких скоростей с низкой вибрацией и меньшим шумом.
- Система СОЖ с фильтрацией стружки и встроенным баком охлаждающей жидкости
- Пистолет для очистки рабочей зоны от стружки
- Встроенная система внутреннего охлаждения инструмента CTS 20 бар
- Конвейер для стружки ленточного типа для эффективного удаления стружки
- Автоматическая централизованная смазка
- Портативный электронный маховик
- Разъем RJ45, USB и электропитание 230 В
- Дополнительный USB-интерфейс на панели управления
- Водяной блок охлаждения для приводов ускоренного перемещения и ШВП. Предотвращает коррозию и защищает оцинкованные детали, алюминий, черные и цветные металлы
- Теплообменник
- ЭМС (Электромагнитная совместимость)
- Два года гарантии на комплектующие SIEMENS
Система Siemens Sinumerik 840D sl OP 019
- Сенсорный экран 18,5”
- Технология мультитач (до 5 контактных точек одновременно)
- Высокое разрешение 1366 x 768 пикселей в широкоэкранном формате для удобного управления и мониторинга
- Отсутствие износа механических компонентов благодаря технологии мультитач
- Стекло, защищенное от царапин
- Современный, интеллектуальный дизайн
- Может эксплуатироваться в перчатках
- Функции безопасности системы управления комплексной безопасности
- Обнаружение и обработка остаточных материалов для механической обработки
- Пошаговое программирование работы ShopMill
- Технология MDynamics позволяет быстро программировать оптимальную обработку. Это лучшее в своем классе технологическое ноу-хау во всех отраслях промышленности наряду с максимальной простотой использования
- Управление сетевыми дисками
- 3-D моделирование
- Интеллектуальное управление движением — это оптимальное качество поверхности и максимальную скорость обработки одновременно
- Прогрессивная интерполяция
- Передача и преобразование поверхности
- Измерительный цикл
- Одновременная запись
- Память пользователя HMI на карте CF
- Коррекция радиуса инструмента 3D
- Цикл измерения кинематики CYCLE996
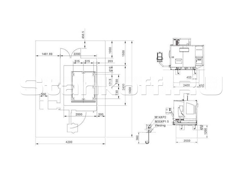
| Технические характеристики фрезерного станка с ЧПУ OPTImill FU 5-600 HSC 18 |
|
| Напряжение | 380 В |
| Мощность привода шпинделя | 25 кВт |
| Конус шпинделя | HSK A-63 DIN 69893 |
| Крутящий момент шпинделя | 32 Нм |
| Точность позиционирования | ± 0,008 мм |
| Точность повторяемости | ± 0,004 мм |
| Частота вращения шпинделя | 18000 об/мин |
| Кол-во T-образных пазов на столе | 7 |
| Расстояние между Т-образными пазами на столе | 75 мм |
| Размер Т-образных пазов стола | 14 мм |
| Максимальная нагрузка на стол | 600 кг |
| Количество осей | 3 |
| Автоматическое перемещение по оси X | 600 мм |
| Автоматическое перемещение по оси Y | 600 мм |
| Автоматическое перемещение по оси Z | 500 мм |
| Скорость подачи по оси X | 36000 мм/мин |
| Скорость подачи по оси Y | 36000 мм/мин |
| Скорость подачи по оси Z | 36000 мм/мин |
| Ускорение осей X, Y, Z | 7 м/с2 |
| Вращение по оси С | 360 ° |
| Момент затяжки оси С | 1200 Нм |
| Максимальная скорость вращения оси С | 90 об/мин |
| Угол наклона оси А | ± 120 ° |
| Момент затяжки оси А | 2900 Нм |
| Максимальный крутящий момент оси А | 393 Нм |
| Максимальная скорость наклона оси А | 16.6 об/мин |
| Количество слотов для инструментов | 32 |
| Максимальный диаметр инструмента | 78 мм |
| Максимальная длина инструмента | 300 мм |
| Максимальная масса инструмента | 7 кг |
| Время смены инструмента | 1.51 с |
| Давление сжатого воздуха | 6 бар |
| Объем бака СОЖ | 380 л |
| Емкость дополнительного бака СОЖ | 165 л |
| Мощность насосов промывки стружки | 2.46 кВт |
| Вес | 9150 кг |
| Габариты (Д*Ш*В) | 3015x4440x3000 мм |
Похожие товары
Каталог
Компания
Станкофф.RU
420127, Россия, Татарстан, Казань, ул. Фатыха Амирхана, 42а
+7 (800) 5555770
Социальные группы








