Сушильная печь Chugai Ro (Япония) Б/У - Продам в Йошкар-Оле
Детальное описание
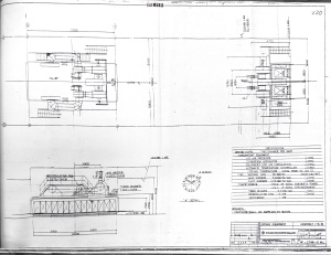
АО «Завод полупроводниковых приборов» предлагает к продаже сушильную печь, состоящую из 2 камер, оснащенных воздухонагревателями, каналами горячего воздуха. Конструкция предлагаемого оборудования приведена на прилагаемом чертеже. Проектирование и производство оборудования выполнено на основе Японского промышленного стандарта (JIS), производитель Chugai Ro (Япония).
Ключевые технические характеристики:
Назначение: Сушка огнеупорных изделий
1. 2 камеры
2. Год выпуска 1980
2. Поддоны для сушки: ширина 950 мм, длина 680 мм, высота 1500 мм
3. Теплопроизводительность: 520 кг / поддон * 14 поддонов = 7280 кг / камера
7280 кг * 2 камеры = 14 560 кг / сушильная печь
4. Удельная теплоемкость: 0,2 кал/(кг·°C)
5. Температура воздуха в сушильной печи: от 40 до 120°C (перепад температур ±10°C)
6. Максимальная температура: 120 градусов
7. Используемый газ: природный
8. Требуемые ресурсы:
1) Природный газ: 30 Нм³/час
Теплотворная способность: 8,500 ккал/Нм³ (диапазон 8000 ~ 9000 ккал/Нм³):
Основные горелки: 5,9 Нм³/час * 4 комплекта = 23,6 Нм³/час
Дежурные горелки: 0,35 Нм³/час * 2 комплекта = 0,7 Нм³/час
2) Электричество: 35 кВт
380В, 50Гц, 3 фазы (для питания)
100В, 50 Гц, 1 фаза (для приборов)
1. Турбонаддувы 3,7 кВт*1комплект = 3,7 кВт
2. Вентиляторы рециркуляции 15,0 кВт*2комплекта = 30,0 кВт
3. Инструменты 1,0 кВт
3) Давление подачи природного газа
Основное давление: 0,2~0,5 кг/см2
Давление в линии подачи горелки: 150 ~ 170 мм Н2O
Полностью в рабочем состоянии.
Расходы на демонтаж и вывоз оборудования несет покупатель (возможно предоставление продавцом погрузчика).
По вопросам приобретения просим обращаться по адресу электронной почты: shnshugaepov@zpp12.ru
Создано 06.04.2026 Изменено 06.04.2026





